E R I C   M.   H U G H E S       


LEWIS PAVILION 


2020 - 2021

Mississippi State University

Undergraduate Thesis

DISTINCTIONS:
Published in BARNworks


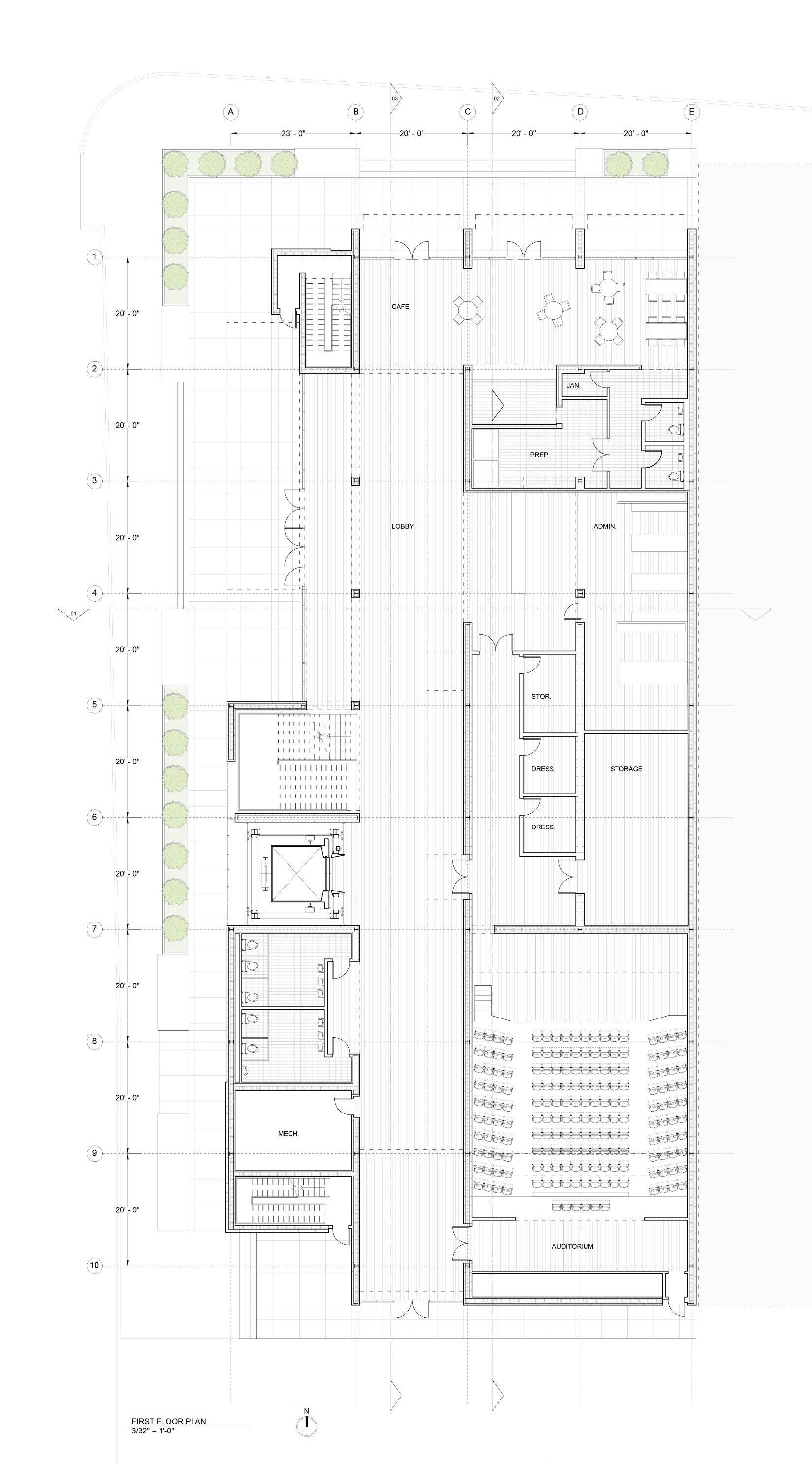
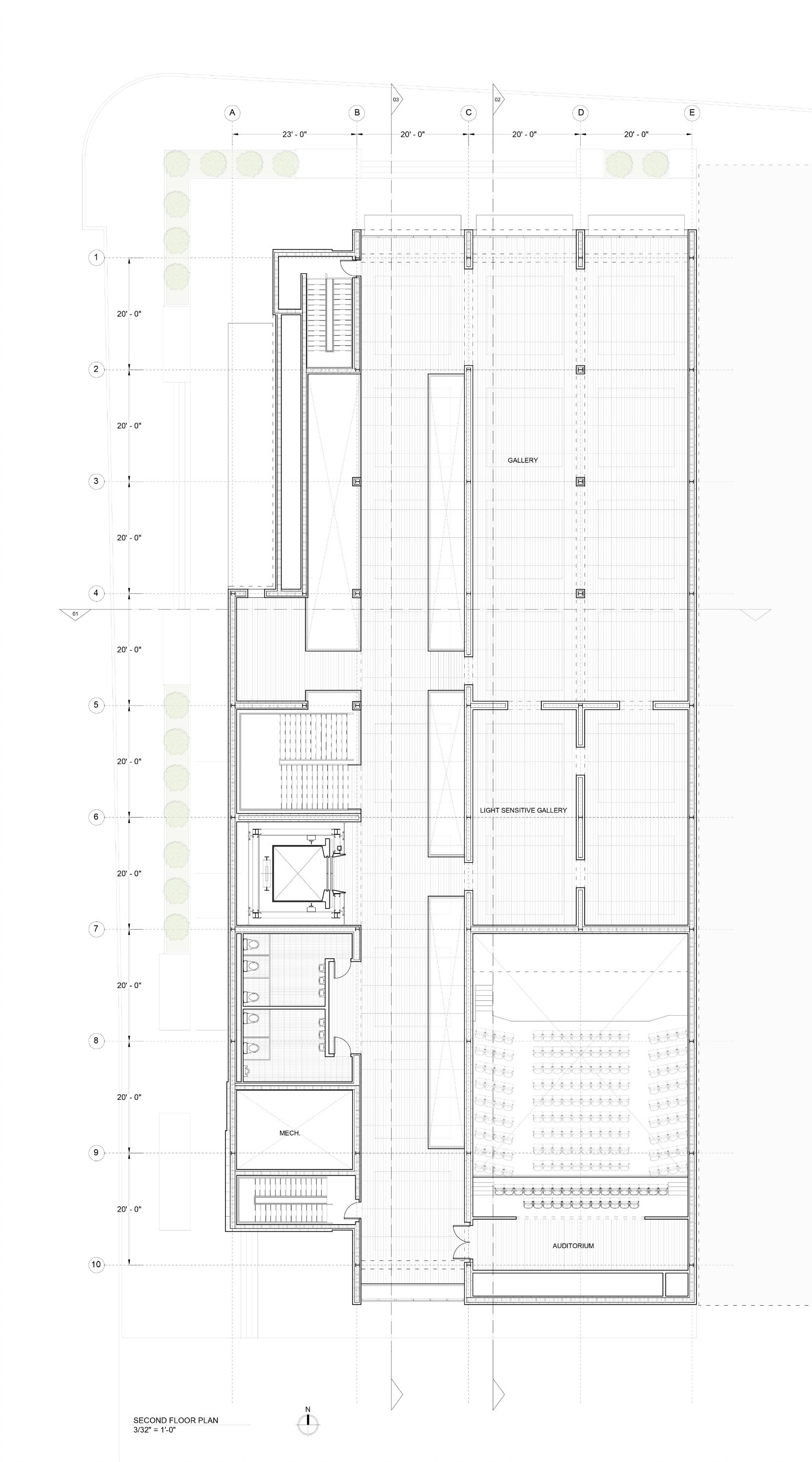
DESCRIPTION:
Jackson, the Capitol city of Mississippi has a need for cultural growth and change. A vibrant art industry exists in the local community but lacks a true presence downtown. One of the contributing factors to the significant art field is the fine arts school at Millsaps College nearby. The college is located about two miles north of downtown and is nestled between the two well-known districts of Belhaven and Fondren. While Millsaps’ location provides many opportunities, one of its downsides is a true connection to the downtown area. The desire for more community engagement, and need for cultural growth in downtown Jackson, initiates momentum for an extension of the school. Lewis Pavilion is an art gallery and auditorium space exhibiting the work done by students and local artists in the area. 

CONCEPT:
An art gallery is both directional and static. One moves through a gallery like they would a street, moving through in a directional sense, but stopping at various points, like you would a particular address along a street. Embedding a rhythm within a gallery is crucial to the experience one should have while meandering through the space. The rhythm helps organize the art one after another while also giving an understood place to reflect. The concept of the project included overhead implied volumes within the gallery spaces to help give a since of place within the space. By using the roof and ceiling to create individual bays, one can understand the rhythm of the gallery without sacrificing or limiting the size of art the building can display. The overhead volumes have the ability to create an intimate environment for viewing art no matter the scale of thepiece presented.

MOVEMENT AND TIME:To covey depth and significance, the painting exploits the use of color to both illustrate movement and meaning. In the text titled 1914 Concerning the Spiritual in Art, Wassily Kandinsky explains how colors can be described in two ways: their relative position on the spectrum of cool to warm and their relative position on the spectrum of light to dark. Kandinsky goes on to say, the vibrations within yellow move towards the observer while moving away from the observer in shades of blue. Following this logic, the composition introduces yellow hues to represent the western most face of the façade while blue indicates the interior of the building and eastern movement. Further, Kandinsky speaks to the symbolic meaning of these two colors writing, “blue relates to the color of heaven and has the most potential for a profound meaning while yellow relates to the tones of the earth and has little potential for a profound meaning”(Kandinsky 1946). This symbolism within the two colors adds additional layers to the painting. Yellow then connects to the position in space furthest from the art, while blue can be understood as the location of the gallery, symbolically separated from the human world, and supporting the notion of art being sacred. The hues in between intend to be understood as transitional, becoming green towards the threshold of the building. The adjustment of the chroma further relates to the intermediacy and neutrality of the entrance, emphasizing the purity at the two ends of the painting and exaggerating the space between them.